4 pokoje, wysoki standard, zielona okolica

Mieszkanie na sprzedaż
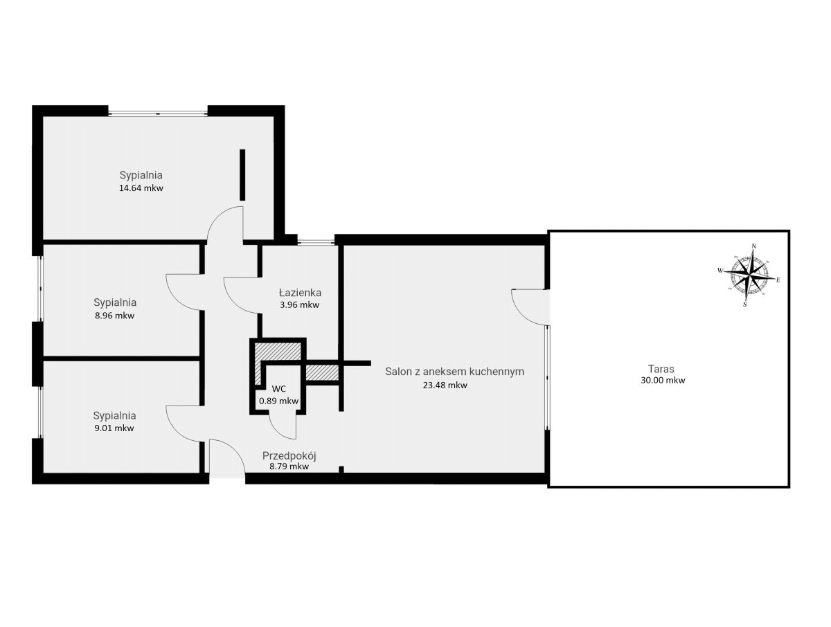
1 090 000,00 PLN , Pow. 69,73 m2
Drukuj ofertę
Drukuj ofertę
Typ nieruchomości:
Mieszkanie
Powierzchnia:
69,73 m2
Typ transakcji:
sprzedaż
Liczba pokoi:
4
Lokalizacja:
Warszawa Włochy , Trzcinowa
Rok budowy:
2004
Piętro:
0 na 4
Numer oferty:
808007
Cena za m2:
15 631,72 PLN
Przestronne, ustawne i przytulne, 4 pokojowe mieszkanie na warszawskich Włochach, idealne dla pary, rodziny z dziećmi jak również pod wynajem. Położone na wysokim parterze czteropiętrowego budynku z 2004 roku przy ul. Trzcinowej 25.

Mieszkanie znajduje się w bardzo atrakcyjnej części dzielnicy. Z jednej strony bliskość Parku Kombatantów, Parku i Stawów Koziorożca oraz Parku Ogrody Kosmosu, niezwykle urokliwych terenów zielonych docenianych przez mieszkańców Warszawy, zapewniających wyciszenie i kontakt z naturą, z drugiej zaś wygodny dostęp do infrastruktury handlowo - usługowej oferowanej przez dzielnicę Włochy.

Do niewątpliwych atutów mieszkania należą:
- świetny rozkład dający bardzo duży potencjał aranżacyjny,
- wysokiej jakości wykończenie oraz wyposażenie wnętrza (meble na wymiar, sprzęt AGD),
- ekspozycja okien na trzy strony świata (północ, wschód i zachód) zapewniająca odpowiednią ilość światła i ciepła,
- klimatyczny, niezwykle duży i przestronny taras, dający poczucie komfortu i spokoju, doskonale spełniający funkcję przydomowej strefy relaksu,
- brak wysokiej zabudowy dookoła oraz cisza i spokój na wyciągnięcie ręki,
- lokalizacja gwarantująca świetną komunikację z resztą stolicy (blisko przystanki autobusowe oraz stacje lokalnych linii kolejowych WKD i SKM).

SZCZEGÓŁY:
Mieszkanie o łącznej powierzchni 69,73 m² składa się z następujących pomieszczeń:
- przestronny salon z praktycznie urządzonym aneksem kuchennym (23,48 m²) z wyjściem na taras (30,00 m²),
- ustawna sypialnia od strony północnej z dużą szafą w zabudowie (14,64 m²),
- pokój/sypialnia od strony zachodniej (8,96 m²),
- drugi pokój/sypialnia od strony zachodniej (9,01 m²),
- wygodna łazienka z oknem i wanną (3,96 m²),
- wc (0,89 m²),
- przedpokój z pojemną szafą w zabudowie (8,79 m²).

Komórka lokatorska o powierzchni 2,19 m² płatna dodatkowo 10.000 zł - zakup obowiązkowy.
Miejsce postojowe w garażu podziemnym płatne dodatkowo 50.000 zł - zakup obowiązkowy.

Budynek zarządzany przez sprawnie działająca wspólnotę mieszkaniową, zadbany, regularnie sprzątany i modernizowany. Za ogrzewanie oraz ciepłą wodę odpowiada kotłownia gazowa. Osiedle zamknięte, strzeżone i monitorowane. Dookoła dużo zieleni.

Stan prawny nieruchomości to pełna własność. Aktualny czynsz wynosi 1.150 zł. W kuchni gaz. Okna PCV. Sprzęt AGD widoczny na zdjęciach wliczony w cenę mieszkania.

LOKALIZACJA:
W pobliżu pełna infrastruktura handlowo - usługowa. W zasięgu krótkiego spaceru są sklepy spożywcze, supermarkety, piekarnie, przedszkola prywatne i państwowe, szkoły podstawowe, licea ogólnokształcące, szkoły wyższe, przychodnie lekarskie, apteki, Park Kombatantów, Park i Stawy Koziorożca, Park Ogrody Kosmosu, skwery, place zabaw, siłownie, kluby fitness, restauracje oraz kawiarnie.

KOMUNIKACJA:
Do przystanków licznych linii autobusowych 5 - 6 minut pieszo, zaś do stacji PKP Warszawa Włochy 14 - 15 minut.
Do wjazdu na trasę S8 (wcześniej Al. Jerozolimskie) - 2,6 km.

Oferta na wyłączność, dostępna tylko w naszym biurze.
Zapraszam do kontaktu oraz na prezentację mieszkania.

Michał Bartosiak
Trust Estate
888 784 790
www.trustestate.pl
Nieprawidłowy adres E-mail